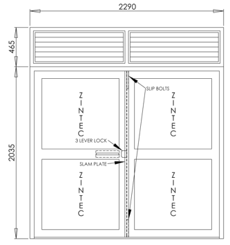
Working with the main contractor 
Wates, our remit as the sub contractor was to install new steel balconies new fire escape doors on each balcony and a new entrance canopy to each block.
The upgrade of the building breathed new life into the local area, improving the living space for the residents and reducing maintenance and repair costs for the landlord.
